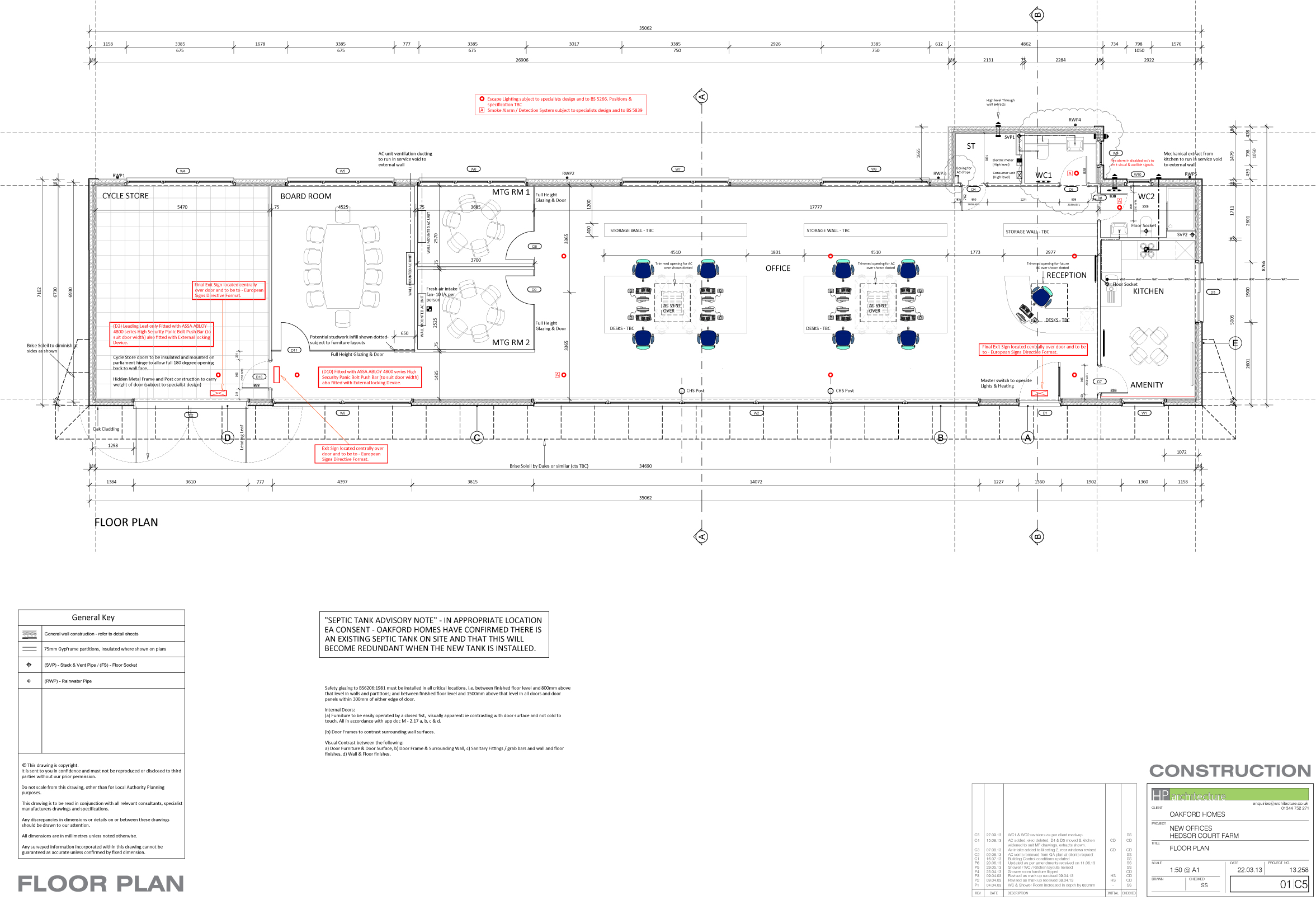
Employed directly by one of our residential developer clients (Oakford Homes) HPA undertook detailed working drawings, details and specifications for this brand new contemporary office scheme for Oakford Homes’ own use.
Employed directly by one of our residential developer clients (Oakford Homes) HPA undertook detailed working drawings, details and specifications for this brand new contemporary office scheme for Oakford Homes’ own use.